Deze woning wordt momenteel nog volledig gerenoveerd en is ideaal gelegen nabij openbaar vervoer, de ring, natuur, scholen en winkels.
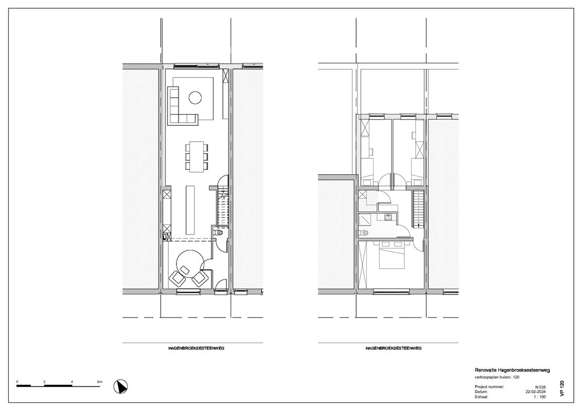
Op de gelijkvloerse verdieping heb je een ruime lichtrijke living met een mooi zicht op de tuin, een open keuken met kookeiland en zithoek en een apart toilet.
Boven heb je 3 slaapkamers, een badkamer met douche, toilet en lavabomeubel, en een berging.
De volledige benedenverdieping heeft vloerverwarming en de woning beschikt ook over zonnepanelen.
Het EPC label voor deze woning is A, het betreft dus een heel energiezuinige woning.
Naar gelang de werken vorderen, heeft u nog inspraak in de materialen van de keuken en de vloer beneden. Dit in samenspraak met de aannemer.
De tuin heeft achteraan nog een wegenis, waardoor je met de fiets of te voet de achterkant van de tuin kan bereiken.
Het uitzicht vanuit de living zal je zeker bekoren, want achter de tuin bevinden zich nog weilanden. Een mooie, rustige en groene omgeving dus.
Verkoop onder registratierechten en dus geen BTW!
Volledig gerenoveerde woning met 3 slaapkamers en tuin
€ 399.000
Verkocht
3
1
122 m²
225 m²
Algemene informatie
AdresHagenbroeksesteenweg 120, 2500 Lier
Aantal slaapkamers3
Aantal badkamers1
Aantal toiletten2
Bewoonbare oppervlakte122 m²
Oppervlakte living38 m²
Grondoppervlakte225 m²
Gevelbreedte5 m
Breedte plot5 m
BeschikbaarheidBij akte
Orientatie achterkantNoordoost
Energieprestatie
EPC label
EPC Waarde81 kWh/m² jaar
EPC Totaal12075 kWh/jaar
Certificaat elektriciteitJa, conform AREI
EPC Referentie20240526-0003260916-RES-1
CO2 uitstoot645 kg/m²/jaar
Financieel
Prijs€ 399.000
Kadastraal inkomen€ 384
Totale kosten€ 3.066,24
Totaal€ 402.066,24
Comfort
VerwarmingCV op gas
KeukenGeïnstalleerd - Alle comfort
BeglazingDubbel glas
RaamkozijnenPVC
InterieurVideofoon, Luiken
ExterieurSept. Put + riolering (gemend systeem), Fotovoltaïsche zonnepanelen
BestemmingPrivé - eengezins
Bebouwing
BebouwingGesloten
BouwtypeTraditioneel
Bouwjaar1937
StaatDirect bewoonbaar
DakPlat dak
DakmateriaalAndere
BodemattestAanwezig
Asbest typeAsbest gevonden, maar verwijdering niet verplicht
Datum asbestattest31/5/2024
Stedenbouwkundige informatie
VoorkooprechtNee
VergunningJa
DagvaardingGeen rechterlijke herstelmaatregel of bestuurlijke maatregel opgelegd
VerkavelingvergunningNee
BestemmingWoongebied
Risicozone voor overstromingenNee
Afgebakend overstromingsgebiedNee
Afgebakende oeverzoneNee
G-scoreKlasse A
P-scoreKlasse D



